防腐系列
Corrosive Resistant
氟塑料襯里閥門系列當前頁面:首頁 > 氟塑料襯里閥門系列
襯氟截止閥J41F46

概述
截止閥是指關閉件(閥瓣)由閥桿帶動并沿閥座中心軸線作升降運動的閥門,在管路中主要用來接通或截斷管路中的介質,但不能做節流用。
結構特點
1、截止閥襯里系列為J41F46直通式,J45F46直流式,J44F46直角式。具有結構緊湊,啟閉靈活,耐腐蝕性能強,行程短等優點,被廣泛應用在化工,石油等管路中做截斷介質用。
2、閥瓣和閥桿設計為一體結構,用以防止由于管路壓力波動造成內件沖出閥體的可能性,保證了使用的安全性。
設計規范
遵循GB12233,GB12235標準。
驅動方式
手動,蝸輪傳動,氣動,電動。
性能規范
| 設計與制造 | 結構長度 | 聯結法蘭 | 壓力試驗 | 產品標志 | 供貨要求 |
| GB/T12237 | HG/T3704-2003 GB/T1221 | HG20592-97 | GB/T13927-92 | GB12220 | GB/T12252 |
公稱壓力:PN1.0-1.6(MPa),公稱通徑:DN15-DN250(mm)。
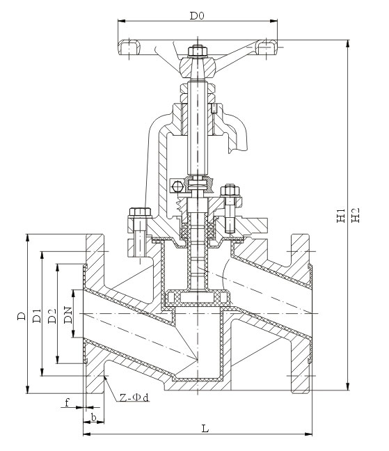
F46襯里截止閥示意圖

主要零部件材料表
| 序號 | 零件名稱 | 球墨鑄鐵 | 鑄鋼 | 不銹鋼 | 超低碳不銹鋼 | ||
| Q | C | P | R | PL | RL | ||
| 1 | 閥體,閥蓋 | Ht250 | WCB | CF8 | CF8M | CF3 | CF3M |
| 2 | 閥瓣,閥桿 | 35 | 1Cr13 | 1Cr18Ni9 | 1Cr18Ni12Mo2Ti | 00Cr18Ni10 | 00Cr17Ni14Mo2 |
| 3 | 活節螺栓 | 35 | 35 | 1Cr17Ni2 | 1Cr17Ni2 | 1Cr17Ni2 | 1Cr17Ni2 |
| 4 | 襯里層/閥座 | FEP(F46) PCTFE(F3) PFA(可溶性F4) PP PO | |||||
| 5 | 填料 | PTFE(F4) | |||||
| 6 | 填料壓蓋 | WCB | WCB | CF8 | CF8M | CF3 | CF3M |
| 7 | 閥桿螺母 | ZcuAl10Fe3 | |||||
| 8 | 螺栓 | 35 | 35 | 1Cr17Ni2 | 1Cr17Ni2 | 1Cr17Ni2 | 1Cr18Ni9Ti |
| 9 | 螺母 | 45 | 45 | 0Cr18Ni9 | 0Cr18Ni9 | 0Cr18Ni9 | 0Cr18Ni9 |
| 10 | 手柄 | Ht200 | 1Cr13 | WCB | WCB | WCB | WCB |
主要連接尺寸和重量
| 公稱通徑 | 標準值 | 參考值 | ||||||||
| DN(mm) | NPS(inch) | L | D1 | D2 | f | Z-Φd | Do | H | H2 | W(kg) |
| PN1.0/PN1.6(MPa) | ||||||||||
| 15 | 1/2 | 130 | 65 | 45 | 2 | 4-Φ14 | 100 | 240 | 265 | 7 |
| 20 | 3/4 | 150 | 75 | 55 | 2 | 4-Φ14 | 100 | 245 | 270 | 7.6 |
| 25 | 1 | 160 | 85 | 65 | 2 | 4-Φ14 | 120 | 250 | 275 | 8.2 |
| 32 | 11/4 | 180 | 100 | 78 | 2 | 4-Φ18 | 140 | 260 | 290 | 12 |
| 40 | 11/2 | 200 | 110 | 85 | 3 | 4-Φ18 | 140 | 285 | 320 | 14 |
| 50 | 2 | 230 | 125 | 100 | 3 | 4-Φ18 | 160 | 300 | 335 | 18 |
| 65 | 21/2 | 290 | 145 | 120 | 3 | 4-Φ18 | 180 | 355 | 400 | 26 |
| 80 | 3 | 310 | 160 | 135 | 3 | 4-Φ18/8-Φ18 | 240 | 400 | 450 | 40 |
| 100 | 4 | 350 | 180 | 155 | 3 | 8-Φ18 | 240 | 455 | 495 | 50 |
| 125 | 5 | 400 | 210 | 185 | 3 | 8-Φ18 | 280 | 530 | 560 | 65 |
| 150 | 6 | 480 | 240 | 210 | 3 | 8-Φ23 | 320 | 610 | 650 | 85 |
| 200 | 8 | 600 | 295 | 265 | 3 | 8-Φ23/12-Φ23 | 360 | 650 | 770 | 150 |
| 250 | 10 | 730 | 350/355 | 320 | 3 | 12-Φ23/12-Φ25 | 400 | 690 | 810 | 245 |
*為蝸輪轉動手輪直徑尺寸
< 返回 >








